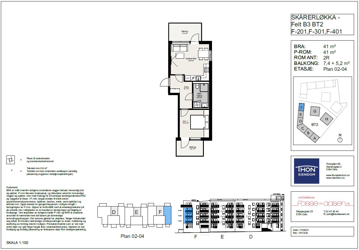
Bolig F0201
- Rom
- 2 Rom
- Areal
- 41 m2
- Pris
- Solgt
Informasjon om Skårerløkka PREMIUM
Vil du kjøpe leilighet?
Har du funnet drømmeleiligheten i Skårerløkka PREMIUM og er klar for å kjøpe den?
Med Thon Eiendoms lange erfaring og ekspertise er du i trygge hender gjennom hele boligkjøpet. Vi veileder deg fra start til slutt, og har samlet all informasjon du trenger for å sikre deg din nye bolig.
Prospekt
I det digitale boligprospektet kan du ta en nærmere titt på etasjeplaner, kvalitet, standard og nabolagsprofil.
Ikke nøl med å kontakte salgssjefen dersom du har spørsmål eller trenger mer informasjon.
Besøk visningssenteret
Siden de fleste boligprosjektene er i en tidlig fase når salget starter, har vi anlagt visningssentre på eller i umiddelbar nærhet av byggeplassen.
Her får du en unik mulighet til å se den faktiske tomta og området hvor ditt fremtidige hjem vil ligge. På visningssenteret får du også møte salgssjefene for prosjektet, og se hvilke materialer, farger, interiør og planløsninger som skal utforme leilighetene.
3. april åpner vi en helt ny visningsleilighet på Skårerløkka, mer informasjon kommer.
Kom på visning og se de ferdige leilighetene
Lurer du på noe? Ta gjerne kontakt med oss!
-
Kenneth Ytterbø
Senior salgssjef, boligsalg
-
Michel Walter Krefting
Salgskoordinator